2019 - Sierpień
Azyl Harmonii – Luksusowy Dom Jednorodzinny w Sieradzu
Jako architekt z Sieradza, od lat tworzę przestrzenie, które nie tylko spełniają potrzeby, ale opowiadają historie. Azyl Harmonii to jedna z tych realizacji, która narodziła się z pragnienia stworzenia wyjątkowego domu – nowoczesnego, ale ciepłego eleganckiego i przytulnego. Właśnie tutaj, w Sieradzu, zaprojektowałem dom, który stał się sercem rodzinnego życia moich klientów.
Zgłosiła się do mnie rodzina, która marzyła o własnym azylu – miejscu pełnym światła, przestrzeni i spokoju. Ich oczekiwania były jasne: przestronny salon do wspólnego spędzania czasu, duży garaż na dwa samochody, prywatny ogród oraz wnętrza, które będą sprzyjać zarówno relaksowi, jak i codziennemu funkcjonowaniu. Moim zadaniem – jako lokalnego projektanta było połączyć te potrzeby w spójną, funkcjonalną i piękną całość.
Marzenia, Potrzeby i wyzwania





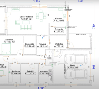
Wizualizacja
🏡 Dom o powierzchni 181,39 m² został zaprojektowany z myślą o codziennym komforcie i estetyce.
Jasna, elegancka elewacja kontrastuje z ciemnym, dwuspadowym dachem, nadając bryle wyrazisty charakter. Wnętrza doświetlają duże przeszklenia – zwłaszcza w salonie z jadalnią (36,61 m²), który jest naturalnym centrum domu. Obok znajduje się kuchnia (10,79 m²) ze spiżarnią (3,86 m²), a prywatną strefę tworzą sypialnia (18,63 m²) i dwa pokoje (13,82 m² oraz 11,10 m²). Funkcjonalność uzupełnia garaż (37,51 m²), dwie łazienki i kotłownia.
Każdy element tego domu został zaprojektowany tak, aby łączyć luksus z wygodą. Naturalne światło wypełnia wnętrza, podkreślając przestrzeń i otwierając dom na otaczającą przyrodę. Kuchnia, duże sypialnie, komfortowa łazienka i przestronny garaż – wszystko tu zostało przemyślane z myślą o codziennym komforcie. Ogród z kwiatami i roślinnością otacza dom miękką zielenią, tworząc atmosferę przytulności.
Funkcjonalność i komfort
Podsumowanie
Projekt „Azyl Harmonii” był piękną drogą – od inspiracji po radość z realizacji. Moi klienci z Sieradza powiedzieli: „To dokładnie taki dom, o jakim marzyliśmy”.
Jeśli i Ty szukasz architekta w Sieradzu, który zaprojektuje przestrzeń dopasowaną do Twoich potrzeb i marzeń – zapraszam do kontaktu.
Razem stworzymy miejsce, które stanie się Twoim prawdziwym domem.
Twój wymarzony dom zaczyna się tutaj
Zarezerwuj miejsce w naszym harmonogramie i pozwól nam stworzyć przestrzeń, która będzie odzwierciedleniem Twojej wizji i stylu życia.
Zarezerwuj wizytę – liczba miejsc jest ograniczona.
